Charmantes Einfamilienhaus mit Geschichte und Entwicklungspotenzial in Bremen-Aumund
28755 Bremen, Einfamilienhaus zum Kauf
Kontaktdaten
-
NameFirma Team Kaemena Immobilien
-
FirmaKaemena & Köpke GmbH
-
Adresse5 Ostlandstraße
28790 Schwanewede -
E-Mail Zentrale
-
E-Mail Direkt
-
Tel. Zentrale
-
Fax004942099867729
Objektdaten
-
Objekt IDKK-0490
-
ObjekttypenEinfamilienhaus, Haus
-
Adresse28755 Bremen
-
Wohnfläche ca.90 m²
-
Grundstück ca.599 m²
-
Nutzfläche ca.30 m²
-
Zimmer3
-
Schlafzimmer2
-
Badezimmer1
-
Terrassen1
-
Wesentliche EnergieträgerGas
-
Baujahr1948
-
Zustandgepflegt
-
Statusvermietet
-
Garage:1 Stellplatz
-
Käuferprovision2,975% zzgl. MwSt.
-
Kaufpreis180.000 EUR
Ausstattung / Merkmale
- Teilunterkellert
- Terrasse
Energieausweis
-
EnergieausweistypBedarfsausweis
-
Ausstellungsdatumvor dem 1.5.2014
-
Gültig bis22.12.2023
-
GebäudeartWohngebäude
-
Baujahr lt. Energieausweis1948
-
PrimärenergieträgerGas
-
Endenergiebedarf145,60 kWh/(m²·a)
-
EnergieeffizienzklasseE
Objektbeschreibung
Beschreibung
Dieses gepflegte, ältere Wohnhaus aus den frühen 1950er-Jahren befindet sich in ruhiger und gewachsener Lage von Bremen-Aumund und vereint Charakter, Substanz und vielfältige Perspektiven für die Zukunft.
Das Gebäude war ursprünglich als Wohn- und Geschäftshaus konzipiert und wurde im Laufe der Jahre schrittweise zu Wohnzwecken umgebaut. Heute bietet es eine Wohnfläche von ca. 90 m² und eignet sich sowohl für Eigennutzer mit langfristiger Planung als auch für Kapitalanleger mit Blick auf Entwicklung und Wertsteigerung.
Das Haus steht auf einem großzügigen Grundstück von rund 600 m², das besonders durch seinen gepflegten und grünen Charakter überzeugt.
Ein schöner Garten, eine überdachte Terrasse sowie eine Garage bieten viel Platz für Erholung, Freizeit und praktische Nutzung. Der Außenbereich lädt zum Verweilen ein und bietet Potenzial für individuelle Gestaltungsideen.
Ausstattung
Trotz des anstehenden Entwicklungsbedarfs– insbesondere im energetischen Bereich, der in den kommenden Jahren berücksichtigt werden sollte – befindet sich die Immobilie dank der langjährigen Mieter in einem gepflegten Gesamtzustand. Das Haus wurde stets bewohnt und instand gehalten, sodass eine solide Basis für zukünftige Maßnahmen vorhanden ist.
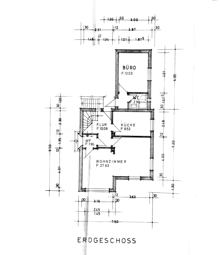
Die Räume gliedern sich in:
Erdgeschoss:
1 Wohnzimmer
1 Küche
1 Flur
1 Büro
sowie
1 Terrasse
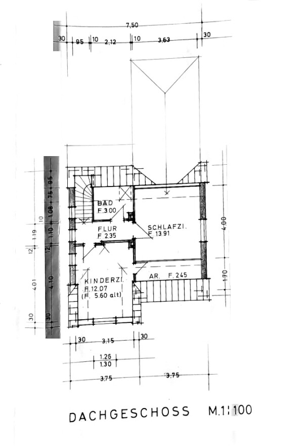
Obergeschoss:
1 gr. Schlafzimmer
1 kl. Schlafzimmer
1 Duschbad mit WC und Fenster
1 Garage
1 Keller
Die Immobilie ist derzeit vermietet.
Die Mieter fühlen sich wohl und planen aktuell nicht kurzfristig auszuziehen.
Für einen neuen Eigentümer ergeben sich daraus zwei realistische Optionen:
1. Fortführung der Vermietung als Kapitalanlage mit Entwicklungspotenzial
2. Eigenbedarfskündigung zu einem späteren Zeitpunkt, sofern eine Eigennutzung vorgesehen ist
Diese Situation macht das Objekt besonders interessant für Käufer, die nicht sofort selbst einziehen müssen, sondern strategisch und vorausschauend planen.
Sonstige Informationen
Dieses Haus in Bremen-Aumund ist kein Neubau – sondern eine Immobilie mit Geschichte, Substanz und Zukunft.
Ideal für Käufer, die den Charme älterer Häuser schätzen, bereit sind, perspektivisch zu investieren, und dabei entweder auf Mieteinnahmen setzen oder langfristig den Traum vom eigenen Zuhause verwirklichen möchten.
Für einen Besichtigungstermin senden Sie uns bitte eine Kontaktanfrage MIT Ihrer Telefonnummer.
Lage
Die Immobilie befindet sich in der Dobheide im beliebten Bremer Stadtteil Aumund-Hammersbeck, einem gewachsenen und ruhigen Wohngebiet im Norden der Hansestadt. Die Lage zeichnet sich durch eine angenehme Mischung aus Wohnruhe, guter Nachbarschaft und solider Infrastruktur aus.
Einkaufsmöglichkeiten für den täglichen Bedarf, Bäcker, Ärzte, Apotheken sowie weitere Dienstleistungen sind in wenigen Minuten erreichbar. Auch Schulen, Kindergärten und Freizeiteinrichtungen befinden sich im näheren Umfeld und machen die Lage besonders attraktiv für Familien und Paare.
Die Anbindung an den öffentlichen Nahverkehr ist gut: Bus- und Bahnverbindungen ermöglichen eine zügige Erreichbarkeit der Bremer Innenstadt sowie der umliegenden Stadtteile. Gleichzeitig besteht eine gute Verkehrsanbindung in Richtung Vegesack, Blumenthal und die A270, wodurch auch Pendler von der Lage profitieren.
Grünflächen, Spazier- und Erholungsmöglichkeiten befinden sich ebenfalls in der Nähe und unterstreichen den wohnlichen Charakter des Quartiers. Aumund gilt insgesamt als bodenständiger, gefragter Stadtteil, der sich durch Beständigkeit und eine stabile Nachfrage auszeichnet.
Die ungefähre Position der Immobilie auf Google Maps ansehen (Link auf externe Website)


